27 Habitatges a Manresa

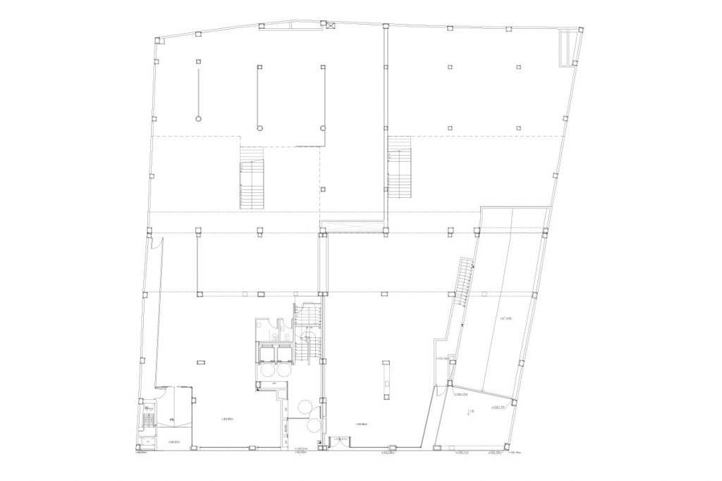
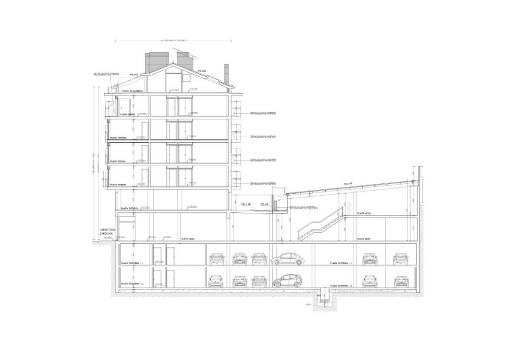
Edifici plurifamiliar entre mitgeres de 27 habitatges, locals comercials en planta baixa i planta entresol, amb un programa compactat de 7 habitatges per planta i tipologies d’habitatges de 1 i 2 dormitoris (dúplex apart). Tot i aquest programa ajustat, tots els habitatges disposaven de terrasses i es van preveure dues plantes soterrani d’aparcament, que per la seva complexitat van ser executades amb fonamentació perimetral de pilotatges.

Promotor
Grupo Parera SL

 

Constructora
Constructora d’Aro SA

 

Equip tècnic
Albert Sos i Miquel Àngel Prunés